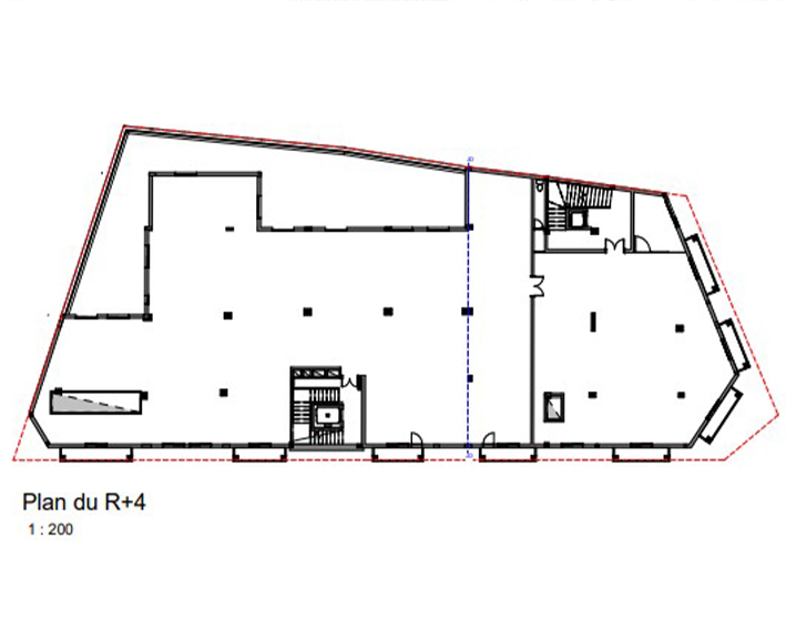
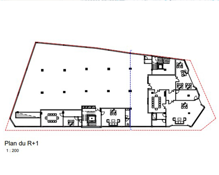
IMMEUBLE A VENDRE R+4 Situé à HAMMAM-SOUSSE objet du titre foncier N°76953 Sousse ayant une superficie totale 1555 m². Il ouvre à l’Est directement sur la contre voie de la déviation du GP, à droite en allant vers Sousse au niveau du Giratoire de la Route des Calèches et au niveau de la Mosquée D’Essahaba (voie de 50 m érigée en deux fois deux voies éclairées et revêtues en enrobé et au Sud sur une 2ème voie de 15m projetée par le plan d’Aménagement de la commune de Hammam-Sousse. Il est composé d’un entre sol partiel, d’un rez de chaussée et de cinq étages 1-L’Entre Sol : Partiel et ayant une superficie couverte totale de 203 m² environ, il est conçu pour abriter un parking. La structure de l’entre sol est en béton armé : les murs sont en voile en béton arme, le toit est en dalle pleine et le sol est conçu en un sol industriel non encore fini 2- Le Rez de Chaussée : D’une superficie couverte totale de 1052 m² environ, il abrite une salle d’exposition et un grand dépôt Ouvrant à l’Est sur la contre voie de la Déviation du GP1 et au Sud sur une voie de 15 m, il est achevé. La structure du rez de chaussée est en béton armé : les murs sont en briques de 12 trous en doubles cloisons, le toit est en dalle pleine et le sol est revêtu en grés dans la masse de haute gamme. La menuiserie extérieure est en aluminium avec des volets roulants avec ouverture électrique et de grandes baies vitrées donnant à l’Est sur l’adite contre voie Le plafond des salons est dédoublé d’un faux plafond en plâtre décoré Elle est équipée de deux grands portails 3-Le Premier et le Deuxième Etages : Presque identique et au même stade d'avancement des travaux de construction, ils sont conçus en deux grands « Open Space » Au niveau de la finition, ils leur manquent la pose du revêtement du sol et mural, la pose du faux plafond, et l'exécution de tous les autres travaux de finition. La superficie couverte du 1er Etage est de 852 m² environ et la superficie du 2eme étage est de 879 m2 environ Leur structure est en béton armé : les murs sont en briques de 12 trous en doubles cloisons et le toit est en dalle pleine. 4- le 3ème et le 4éme étage : Presque identiques et au même stade d'avancement des travaux de construction, ils sont conçus en deux grands « Open Space » Au niveau des gros œuvres, ils leur manquent la pose du faux plafond, la pose du revêtement du sol et mural et l’exécution de tous L'immeuble et équipé de deux ascenseurs. Tous les étages son branchés au réseau d'assainissement, au réseau électrique, au réseau gaz de ville et sont alimentés en eau potable. Contact : 21297277
IMMEUBLE PLANS













